£800,000

4 bed detached house for sale in Ludham Hall Lane, Great Notley, Essex (ref: 99951950)

Shortlist

Key features

  • Exclusive gated development in sought-after Great Notley
  • Custom build opportunity
  • Open-plan kitchens with quartz worktops & Siemens appliances
  • Luxury bathrooms with Crosswater fittings & walk-in showers
  • Landscaped gardens with turfed lawns & Indian sandstone patios
  • Air source heat pumps, underfloor heating, Cat 6 cabling & EV charging
  • Secure entry, CCTV & alarm system
  • Walking distance to shops, schools & parkland with great transport links

Virtual Tour

Welcome to an exclusive new development tucked away on a quiet lane in Great Notley, offering just four bespoke homes set within a secure, gated setting. With plot sizes ranging from 560 to 700 square metres.

The Ashbury
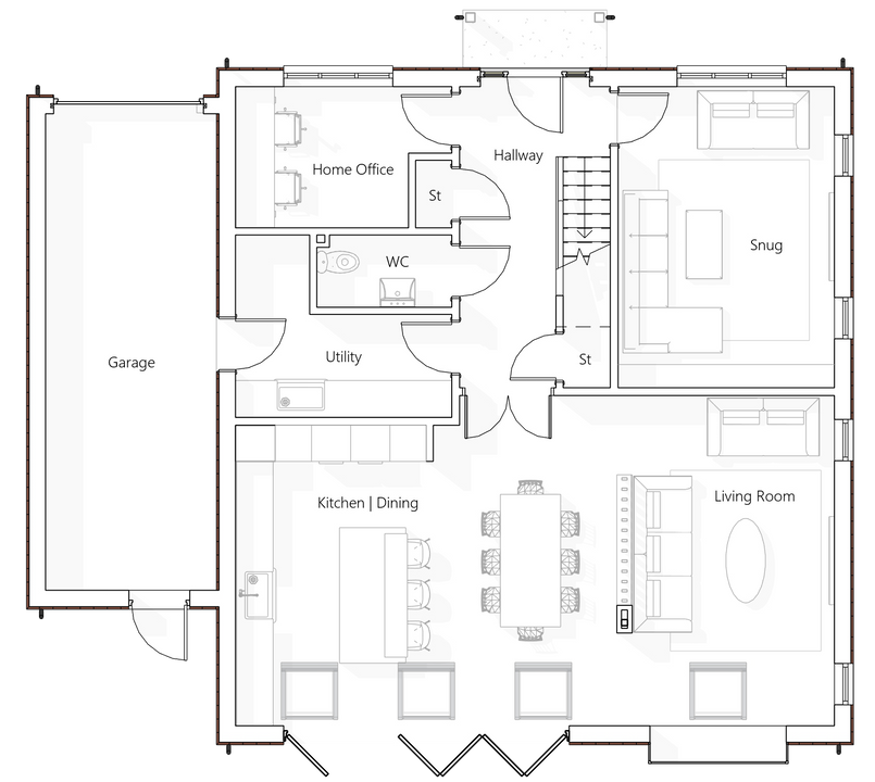
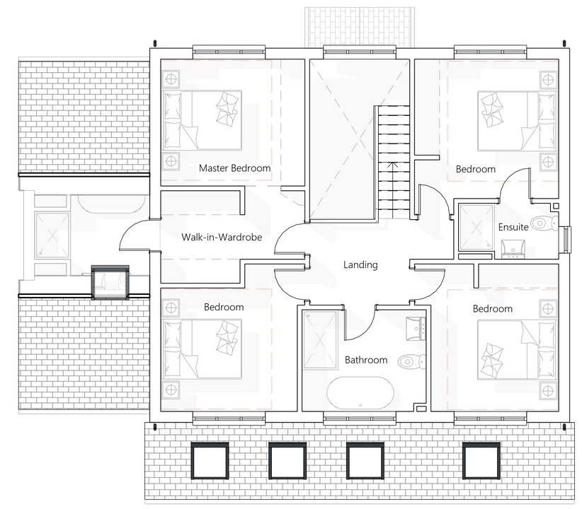
A substantial four-bedroom, three-bathroom detached home extending to 2,415 sq ft across two floors. These homes offer either a turnkey finish of exceptional quality or the ability to tailor the design through a custom build process.

The ground floor centres around a large open-plan kitchen, dining and family space ideal for entertaining and everyday living, while upstairs the principal suite features a luxury ensuite and bespoke built-in storage. Three further bedrooms are generously proportioned and complemented by high-spec bathrooms.

Premium Specification – Inside and Out
Every home within the development is completed to an uncompromising standard:

Handcrafted kitchens with quartz worktops, Siemens appliances, boiling water taps, and bespoke lighting

Luxury bathrooms featuring Crosswater sanitaryware, large walk-in showers, freestanding baths (in selected plots), porcelain tiling, and chrome towel rails

Underfloor heating powered by air source heat pumps, Cat 6 cabling, LED lighting, and EV charging points

Aluminium windows and bifold doors, solid-core internal doors, and exceptional insulation for comfort and energy efficiency

Outside, each plot benefits from a Cotswold stone driveway, landscaped gardens, Indian sandstone patio, and comprehensive security features including gated access, CCTV, and motion-sensitive lighting.

Location
Tucked away on a quiet lane in Great Notley, this exclusive development offers a rare blend of village charm and modern convenience. Residents are within walking distance of green spaces, shops, cafés, and well-regarded schools, with easy access to Chelmsford, Cambridge, and London via excellent road and rail links.

Contact us today for more information, to discuss availability, reserve your plot, or explore the option to customise your new home.

Stamp duty due

Based on a sale price of £800,000 the total amount of stamp duty payable will be:

*

Last updated: The calculator has been updated to reflect changes in stamp duty following the Autumn Budget on 30th October 2024 for April 1st 2025 onwards.

* This value is based on the standard rate and not applicable to first-time buyers or buy-to-let / second home buyers.

13 Property images

4 bed detached house for sale in Ludham Hall Lane, Great Notley, Essex 0
4 bed detached house for sale in Ludham Hall Lane, Great Notley, Essex 1
4 bed detached house for sale in Ludham Hall Lane, Great Notley, Essex 2
4 bed detached house for sale in Ludham Hall Lane, Great Notley, Essex 3
4 bed detached house for sale in Ludham Hall Lane, Great Notley, Essex 4
4 bed detached house for sale in Ludham Hall Lane, Great Notley, Essex 5
4 bed detached house for sale in Ludham Hall Lane, Great Notley, Essex 6
4 bed detached house for sale in Ludham Hall Lane, Great Notley, Essex 7
4 bed detached house for sale in Ludham Hall Lane, Great Notley, Essex 8
4 bed detached house for sale in Ludham Hall Lane, Great Notley, Essex 9
4 bed detached house for sale in Ludham Hall Lane, Great Notley, Essex 10
4 bed detached house for sale in Ludham Hall Lane, Great Notley, Essex 11
4 bed detached house for sale in Ludham Hall Lane, Great Notley, Essex 12

Further details

  • Status: Available
  • Tenure: Freehold
  • Reference: 99951950

Location