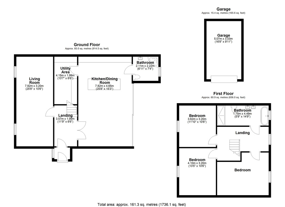
3 bed semi-detached house for sale in Rainbow Road, Matching Tye, Harlow, Essex
Offers over £600,000
3 bedrooms
2 bathrooms
2 receptions
1736 sq ft (161 .28 sq m)
3 bedrooms
2 bathrooms
2 receptions
1736 sq ft (161 .28 sq m)



























