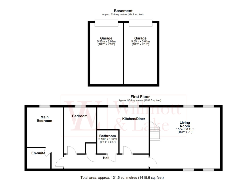
2 bed for sale in Cavell Drive, Bishop's Stortford, Hertfordshire
Asking Price £325,000
2 bedrooms
2 bathrooms
1 reception
1415 sq ft (131 .46 sq m)
2 bedrooms
2 bathrooms
1 reception
1415 sq ft (131 .46 sq m)














