Land for sale in Ludham Hall Lane, Great Notley, Essex
£275,000
£275,000
Land for sale in Ludham Hall Lane, Great Notley, Essex (ref: 857930)
ShortlistKey features
- Exclusive gated development in sought-after Great Notley
- Custom build opportunity
- Open-plan kitchens with quartz worktops & Siemens appliances
- Luxury bathrooms with Crosswater fittings & walk-in showers
- Landscaped gardens with turfed lawns & Indian sandstone patios
- Air source heat pumps, underfloor heating, Cat 6 cabling & EV charging
- Secure entry, CCTV & alarm system
- Walking distance to shops, schools & parkland with great transport links
Virtual Tour
Welcome to an exclusive new development tucked away on a quiet lane in Great Notley, offering just four bespoke homes set within a secure, gated setting. With plot sizes ranging from 560 to 700 square metres.
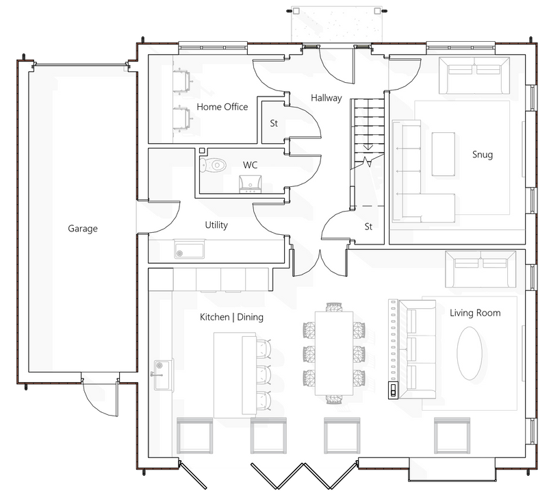
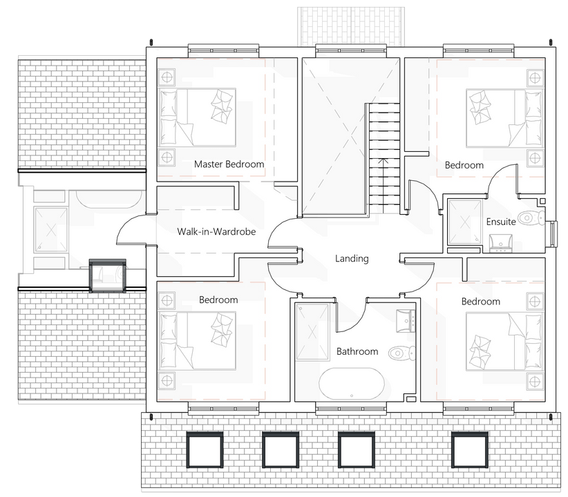
The Ashbury
A substantial four-bedroom, three-bathroom detached home extending to 2,415 sq ft across two floors. These homes offer the ability to tailor the design through a custom build process.
The ground floor centres around a large open-plan kitchen, dining and family space ideal for entertaining and everyday living, while upstairs the principal suite features a luxury ensuite and bespoke built-in storage. Three further bedrooms are generously proportioned and complemented by high-spec bathrooms.
Premium Specification – Inside and Out
Every home within the development is completed to an uncompromising standard:
Handcrafted kitchens with quartz worktops, Siemens appliances, boiling water taps, and bespoke lighting
Luxury bathrooms featuring Crosswater sanitaryware, large walk-in showers, freestanding baths (in selected plots), porcelain tiling, and chrome towel rails
Underfloor heating powered by air source heat pumps, Cat 6 cabling, LED lighting, and EV charging points
Aluminium windows and bifold doors, solid-core internal doors, and exceptional insulation for comfort and energy efficiency
Outside, each plot benefits from a Cotswold stone driveway, landscaped gardens, Indian sandstone patio, and comprehensive security features including gated access, CCTV, and motion-sensitive lighting.
Location
Tucked away on a quiet lane in Great Notley, this exclusive development offers a rare blend of village charm and modern convenience. Residents are within walking distance of green spaces, shops, cafés, and well-regarded schools, with easy access to Chelmsford, Cambridge, and London via excellent road and rail links.
Contact us today for more information, to discuss availability, reserve your plot, or explore the option to customise your new home.
The Ashbury
A substantial four-bedroom, three-bathroom detached home extending to 2,415 sq ft across two floors. These homes offer the ability to tailor the design through a custom build process.
The ground floor centres around a large open-plan kitchen, dining and family space ideal for entertaining and everyday living, while upstairs the principal suite features a luxury ensuite and bespoke built-in storage. Three further bedrooms are generously proportioned and complemented by high-spec bathrooms.
Premium Specification – Inside and Out
Every home within the development is completed to an uncompromising standard:
Handcrafted kitchens with quartz worktops, Siemens appliances, boiling water taps, and bespoke lighting
Luxury bathrooms featuring Crosswater sanitaryware, large walk-in showers, freestanding baths (in selected plots), porcelain tiling, and chrome towel rails
Underfloor heating powered by air source heat pumps, Cat 6 cabling, LED lighting, and EV charging points
Aluminium windows and bifold doors, solid-core internal doors, and exceptional insulation for comfort and energy efficiency
Outside, each plot benefits from a Cotswold stone driveway, landscaped gardens, Indian sandstone patio, and comprehensive security features including gated access, CCTV, and motion-sensitive lighting.
Location
Tucked away on a quiet lane in Great Notley, this exclusive development offers a rare blend of village charm and modern convenience. Residents are within walking distance of green spaces, shops, cafés, and well-regarded schools, with easy access to Chelmsford, Cambridge, and London via excellent road and rail links.
Contact us today for more information, to discuss availability, reserve your plot, or explore the option to customise your new home.















